一品威客凤楼网站论坛

網站首頁 產物展現 處理計劃 對于冠峰 勝利案例 消息靜態 接洽咱們
辦事熱線
您此刻的地位:網站首頁>進行處理行動計劃

山東冠峰 · 處理計劃

西北冠峰產品股分無限小公司是技術正確處理食糧深制作加工一整套的裝置的創新性性股分制的企業。

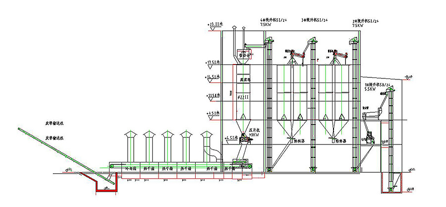
30T/D玉米壓片成套裝備工藝流程

100T/D玉米壓片成套裝備工藝流程

120T/D玉米壓片成套裝備工藝流程

150T/D玉米壓片成套裝備工藝流程

300T/D玉米壓片成套裝備工藝流程


接洽咱們

接洽咱們 0537-4231599
蘭州 冠峰機設備股分無敵大公司營銷推廣經理助理邢司理:13181327369   18254766277營銷渠道司理劉司理:15653708911售后維修業務德律風:0537-4380000徽信:15653708911郵件地址:sdgfjx@163.com   xsb@sdgfjx.net   gsb@sdgfjx.net網站源碼://www_haiyuanjixiezq_com.omtskn.cn地址:蘭州省臨沂市市泗水縣泉福路25號


   版權一切:一品威客鳳樓網站論壇:山東冠峰機器股分無限公司           備案號: